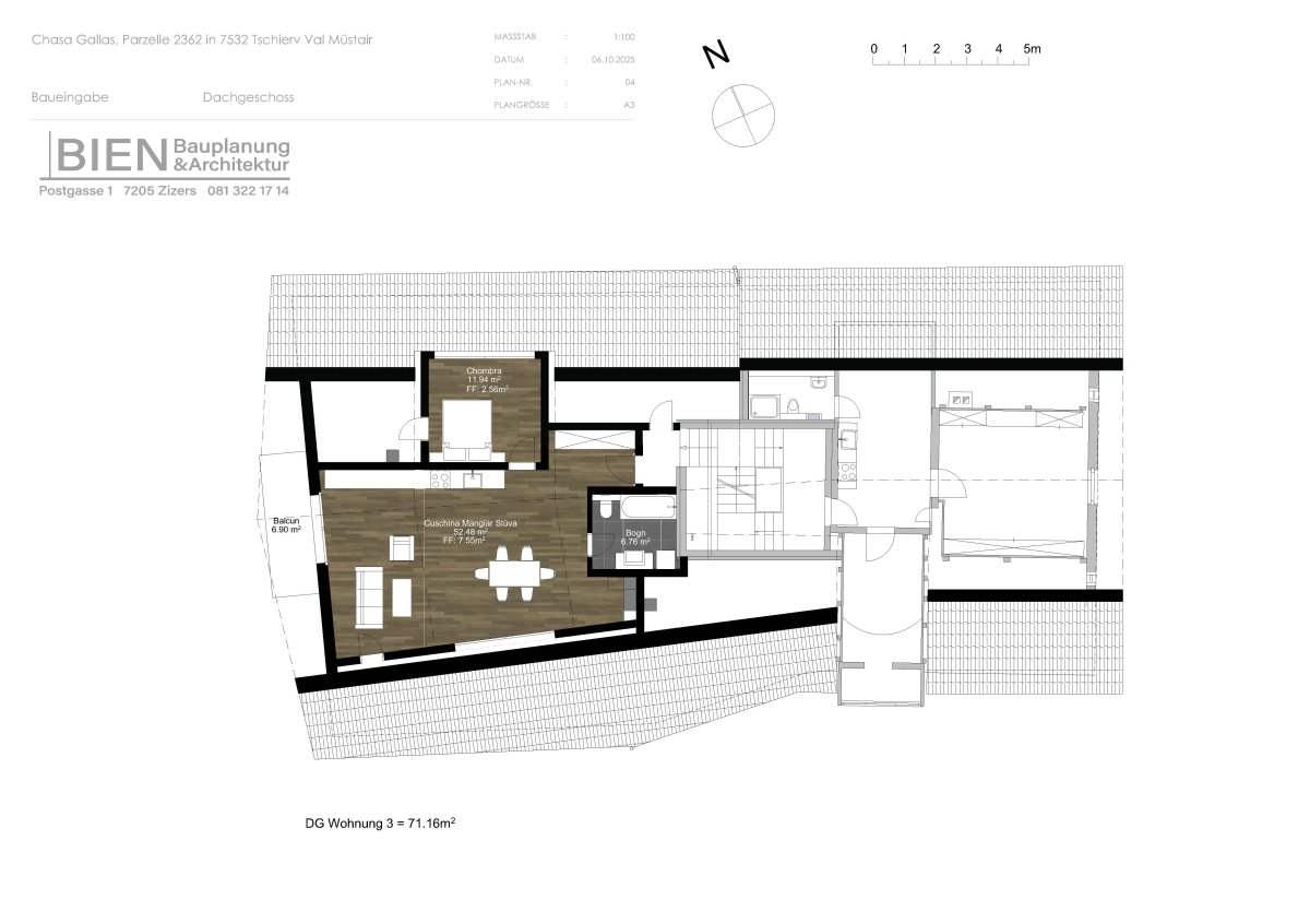
2.5 Zimmer Wohnung - 3OG
- Fläche 71.19 m2
- 3 OG
- 1 Schlafzimmer
- 1 Badzimmer
- Parkplatz in der Tiefgarage
- Erst- oder Zweitwohnsitz möglich


2.5-Zimmer-Dachwohnung mit Panorama – klein, fein und voller Licht
Diese charmante 2.5-Zimmer-Wohnung im Dachgeschoss vereint gemütliches Wohnen mit spektakulärer Aussicht und viel Tageslicht – ideal für Singles, Paare oder als stilvoller Rückzugsort in den Bergen.
Das Herzstück der Wohnung ist der offene Wohn- und Küchenbereich, der sich unter dem Dach zu einem lichtdurchfluteten Raum mit besonderem Charakter entfaltet. Ein grosses Panoramafenster nach Süden eröffnet einen freien Blick auf das eindrucksvolle Bergpanorama der Val Müstair, während ein weiteres grosses Fenster nach Westen die Sicht in Richtung Ofenpass freigibt und für warme Abendsonne sorgt.
Die Wohnung verfügt über ein grosszügiges Schlafzimmer sowie ein modern ausgestattetes Badezimmer.
Ein eigener Waschturm in der Wohnung, ein Tiefgaragenparkplatz sowie ein privater Kellerraum bieten zusätzlichen Komfort und praktische Funktionalität.
Das Herzstück der Wohnung ist der offene Wohn- und Küchenbereich, der sich unter dem Dach zu einem lichtdurchfluteten Raum mit besonderem Charakter entfaltet. Ein grosses Panoramafenster nach Süden eröffnet einen freien Blick auf das eindrucksvolle Bergpanorama der Val Müstair, während ein weiteres grosses Fenster nach Westen die Sicht in Richtung Ofenpass freigibt und für warme Abendsonne sorgt.
Die Wohnung verfügt über ein grosszügiges Schlafzimmer sowie ein modern ausgestattetes Badezimmer.
Ein eigener Waschturm in der Wohnung, ein Tiefgaragenparkplatz sowie ein privater Kellerraum bieten zusätzlichen Komfort und praktische Funktionalität.
Hoch über Chasuras wohnen – hell, ruhig und mit beeindruckendem Ausblick.
Location map will be loaded from external source, Google Maps.
By loading of Google Maps you allow setting of analytics cookies and storing of your IP on Google servers. Privacy Policy